Правила раздела
Продам, 50,8 кв.м, 2-комнатная
Московская область, Краснознаменск, улица Победы, 9
Объявление не актуально (истек срок публикации или удалено автором)
Продаётся 2-комнатная квартира под ремонт.
Во всей квартире смонтированы новые качественные пластиковые окна.
Локация
В шаговой доступности — магазины, школа, детский сад, дом творчества с бассейном, зона отдыха у городского озера и ТЦ Звёздный.
Остановка общественного транспорта — всего 50 метров от дома.
Район благоустроенный, тихий и зелёный.
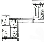
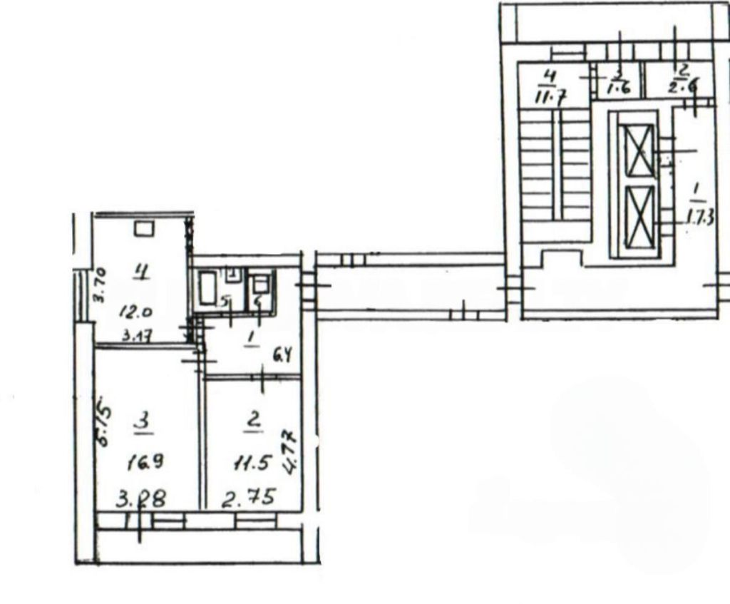
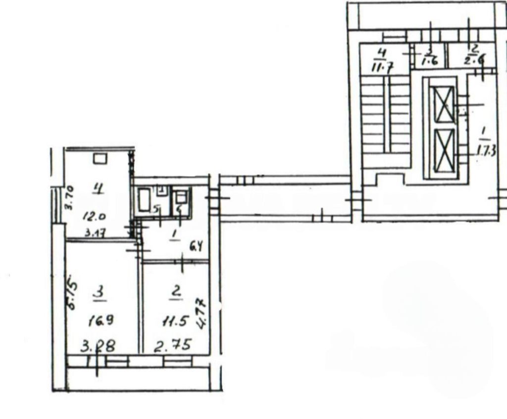
О квартире
Общая площадь — 52,8 м².
Кухня — 12 м², комнаты — 16,9 м² и 11,5 м², есть лоджия.
Планировка удачная, без лишних проходов и потерь площади.
Документы
Более 5 лет в собственности, один взрослый собственник, квартира без обременений.
Документы готовы, чистая продажа, быстрый выход на сделку. Один взрослый собственник.
| Цена: |
8 400 000
Ипотека
165 354 ₽/м²
|
| Информация предоставлена: | АН Один Ключ |
Изменено: 03 января 14:37
